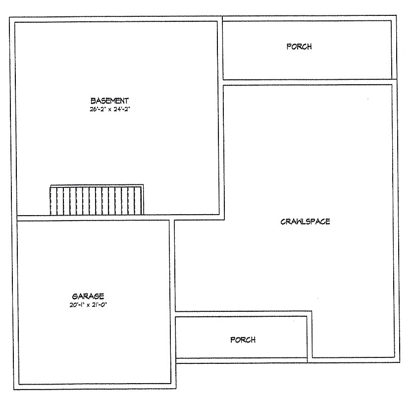
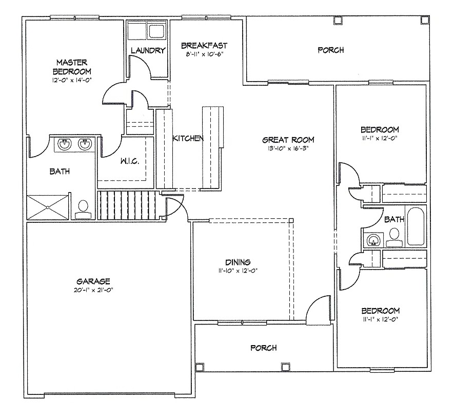
Maple Leaf Floor Plan