![]() |
![]() ![]() |
![]() |
|
|
|
|||
![]() |
|
||
|
|
|
||
|
|
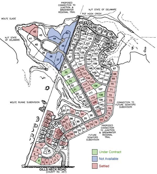
Communities - Hawkseye Site Plan
|
||
|
Atlantic
Homes, LLC, 20684 John J. Williams
Hwy, Suite 1, Lewes, Delaware 19958
TEL: 302.947.0223 | FAX: 302.947.0261 New
custom home building, green-energy efficient home design and construction,
home sales, community developer, renovations,
restorations and commercial construction for the
Delaware Ocean resort communities of Rehoboth Beach, Ocean View,
Bethany Beach, Dewey Beach, Lewes, Milton and associated DelMarVa shore areas
![]()
|
|||